物件No.8019
プラッツ五香
【 千葉県 松戸市 】ショッピングセンターのテナント入替に伴うのクリニックモール計画。

- 住所
- 千葉県松戸市五香8丁目44-6
- 最寄駅
-
新京成線 元山駅 徒歩13分
- 募集科目
- ポイント
-
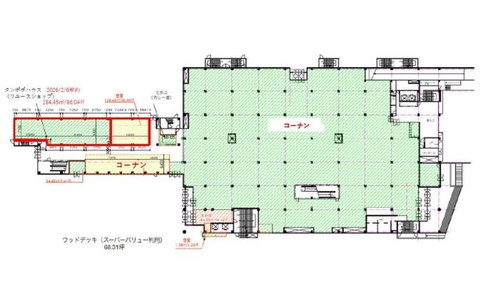
1階の約125坪を分割し、調剤薬局とクリニック2~3院の計画。
2026年中に開院可能案件です。
ホームセンタ―とスーパー盛業中につき早期の認知・集患が期待できます。
1.5km診療圏データ 内科(80.5人/日)、小児科(16.6人/日)、精神科(66.4人/日)
整形外科(129.6人/日)、脳神経外科(30.7人/日)、皮膚科(44.6人/日)、泌尿器科(35.4人)
産婦人科(55.7人/日)、耳鼻咽喉科(93.4人/日)、眼科(65.2人/日)※常住人口ベース
※募集状況により、変更・中止の可能性が御座います。
賃貸条件
- 賃料
- 13,200円/坪(税込)
- 募集区画
- 1階
この物件のお問い合わせはこちら