NEW
物件No.7952
豊島区内科盛業中医療ビル3Fテナント
【 東京都 豊島区 】最寄り駅2駅より徒歩5~10分以内。大通りに面しているので車での来院もしやすい。

- 住所
- 〒1710052 東京都 豊島区
- 最寄駅
-
西武池袋線
都営大江戸線
- 募集科目
- 内科、外科、人工透析、精神科 以外
- ポイント
-
周辺は商店街、大型ショッピングモール、コンビニエンスストア、住宅があり、地域密着型。
1Fはすでに内科外来をおこなっているため、近隣から医療機関としての認知はあり、内科・外科以外の科目であれば、
既存患者様の利用が見込まれる。
賃貸条件
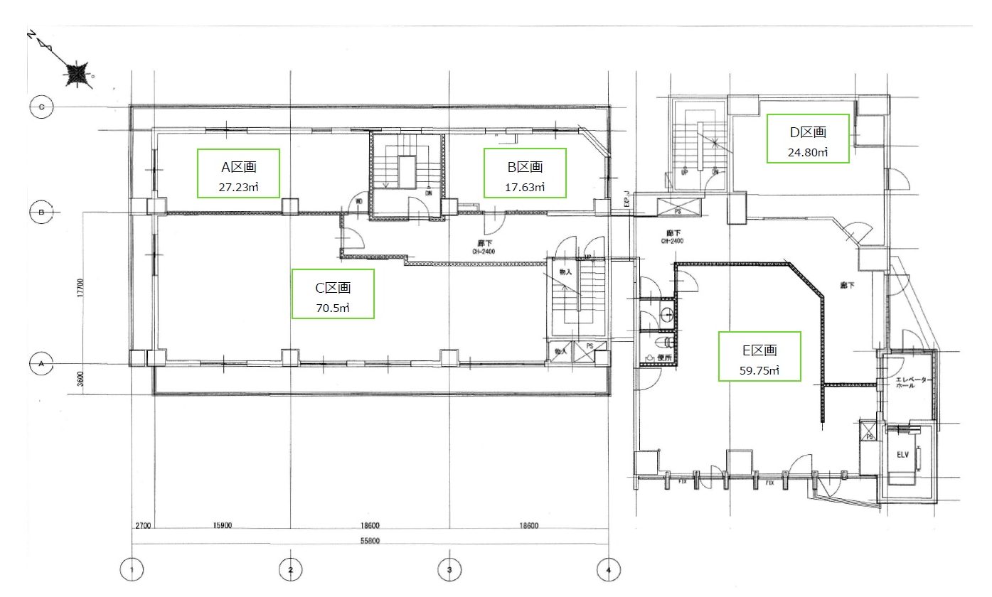
- 面積
- 76.29坪※分割希望応相談
- 賃料
- 16,500円/坪(税込)
- 共益費
- 33,000円(税込)
- 保証金
- 賃料の8か月相当額
- 備考
-
現状区画壁あり、諸条件応相談。現地内見も可能ですので、お気軽にお問い合わせください。
礼金:賃料の1ヶ月相当額+消費税
この物件のお問い合わせはこちら