NEW
物件No.7949
プレミール小山1 階店舗(小平駅徒歩3分)30~60坪
【 東京都 小平市 】小平駅南口歩3 分。駅前メイン通りに面する視認性良好な1階テナント。

- 住所
- 〒1870041 東京都 小平市 美園町1-15-2 プレミール小山
- 最寄駅
-
西武新宿線小平駅南口 徒歩3 分
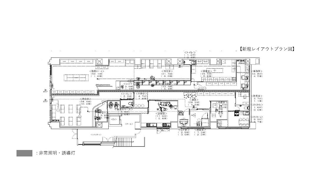
- 募集科目
- 内科 耳鼻咽喉科 皮膚科 泌尿器科 整形外科 リウマチ科
- ポイント
-
小平駅メインストリート(あかしあ通り)沿い。
広い歩道に面しており、視認性非常に良好。
1階路面テナントです。
ルネこだいら目の前。
近隣に耳鼻咽喉科、泌尿器科少なく新規開業に最適。
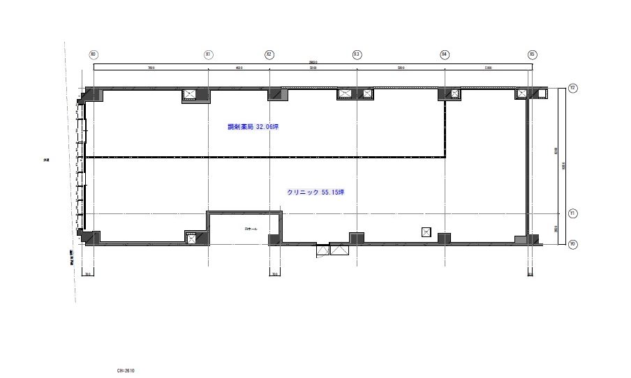
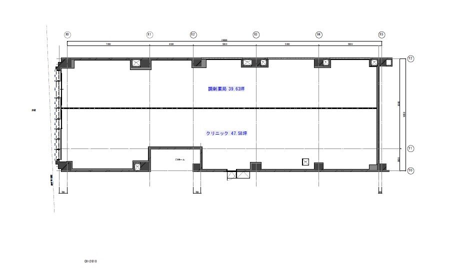
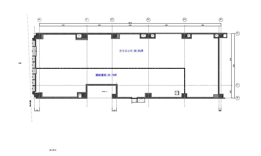
面積区割りは要相談。
小平駅は急行停車駅であり西武新宿まで30分弱のアクセスです。
賃貸条件
- 面積
- 30~60坪(応相談)
- 賃料
- 14,300円/坪(税込)
- 共益費
- 55,000円(税込)
- 保証金
- 700~900 万円(応相談)
- 募集区画
- 1 階
この物件のお問い合わせはこちら