物件No.7876
スーパードラッグひまわり倉敷中庄店
【 岡山県 倉敷市 】駅近くで、立地抜群、新築物件です!

- 住所
- 〒7100016 岡山県 倉敷市 松島1096-1
- 最寄駅
-
JR山陽本線線中庄駅徒歩5分
- 募集科目
- 皮膚科 泌尿器科 精神科 歯科
- ポイント
-
2026年春リニューアルオープンのスーパードラッグひまわり倉敷中庄店のテナント募集です。
認知度、集客力抜群で駐車場完備ののドラッグストアテナントに開業されませんか?
調剤薬局併設で、開業前、開業後も全力でサポートいたします。
賃貸条件
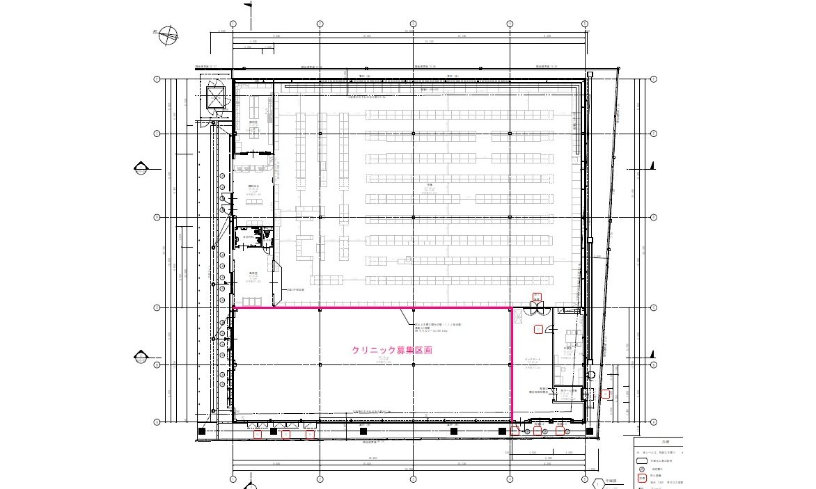
- 面積
- テナントA:60坪 テナントB:40坪
- 賃料
- テナントA:600,000円 テナントB:400,000円 ※税込
- 保証金
- 賃料の3ヶ月分
- 備考
- 2診誘致を予定しております。建物坪数等ご相談に応じます。
この物件のお問い合わせはこちら