物件No.7863
神田淡路町駅前計画
【 東京都 千代田区 】

- 住所
- 東京都千代田区神田淡路町2-4-1
- 最寄駅
-
淡路町駅の出口2分
- 募集科目
- 内科 小児科 耳鼻咽喉科 眼科 皮膚科 泌尿器科 婦人科 整形外科 脳神経外科 心療内科
- ポイント
-
・淡路町駅の出口2分。
・2026年12月末竣工予定。2027年1月引渡しの見込み。
・2027年春開業向け。
賃貸条件
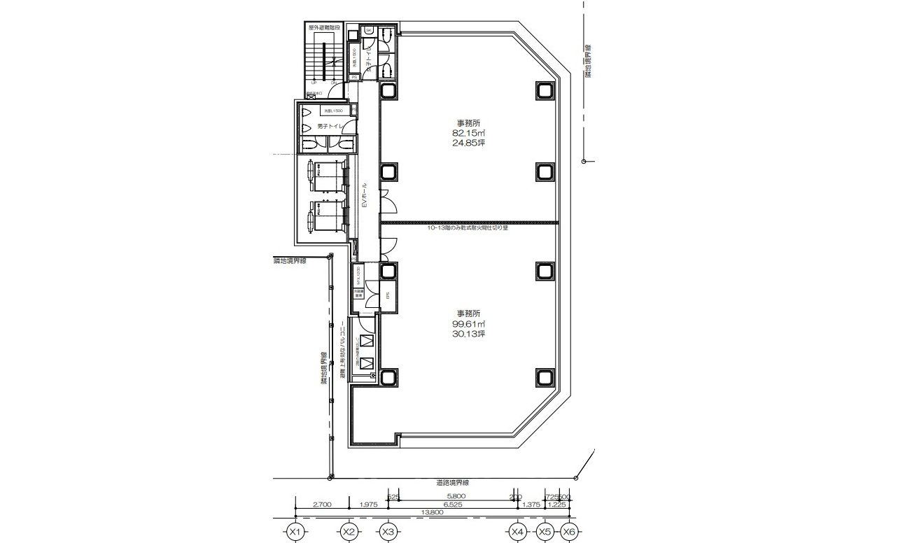
- 面積
- 約60坪(2医院に分割可)
- 賃料
- 3.08万円/坪(税込)
- 備考
- その他経済条件は応相談
この物件のお問い合わせはこちら