NEW
物件No.7181
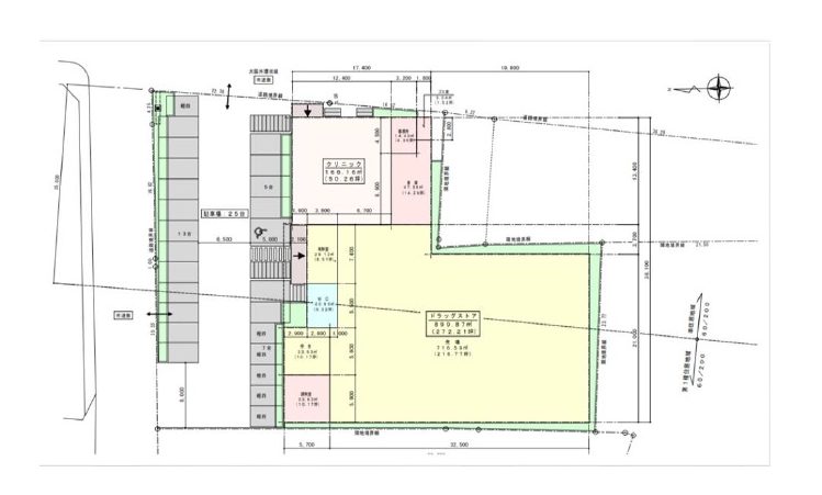
藤井寺沢田 新店計画
【 大阪府 藤井寺市 】

- 住所
- 藤井寺市沢田一丁目118番1 他4筆
- 最寄駅
-
近鉄 南大阪線 藤井寺駅 徒歩15分
- 募集科目
- 歯科以外
- ポイント
-
①ドラッグストア併設物件
②駐車場25台設置予定
③幹線道路付近で視認性抜群
賃貸条件
- 面積
- 約50.26坪 拡縮要相談
- 賃料
- 9,900円/坪(税込)
- 備考
- 開業時期:2027年秋頃 予定
この物件のお問い合わせはこちら