NEW
物件No.7169
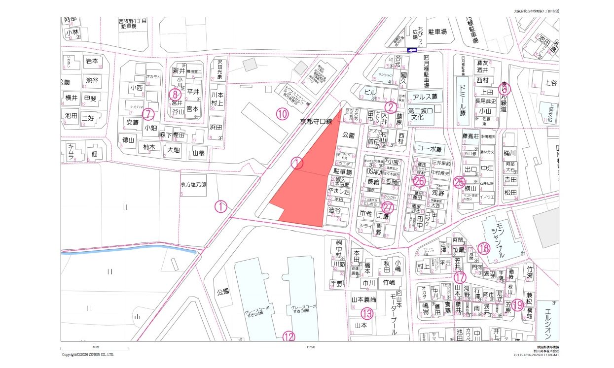
枚方市牧野坂1丁目 テナントビル
【 大阪府 枚方市 】京阪本線「牧野」駅 徒歩7分 視認性抜群ロードサイドテナントビル!!

- 住所
- 〒5731146 大阪府 枚方市 牧野坂1丁目1付近
- 最寄駅
-
京阪本線牧野駅から徒歩7分
- 募集科目
- 内科 消化器科 循環器科 糖尿病 呼吸器科 腎臓内科 小児科 耳鼻咽喉科 眼科 皮膚科 泌尿器科 産婦人科 婦人科 整形外科 形成外科 脳神経外科 脳神経内科 リウマチ科 アレルギー科 リハビリテーション科 精神科 心療内科 人工透析 外科 麻酔科 その他
- ポイント
-
新築テナントビル 駐車場17台完備!
ロードサイドにつき視認性抜群!
新築物件につき区画割自由!
その他、条件面要相談!
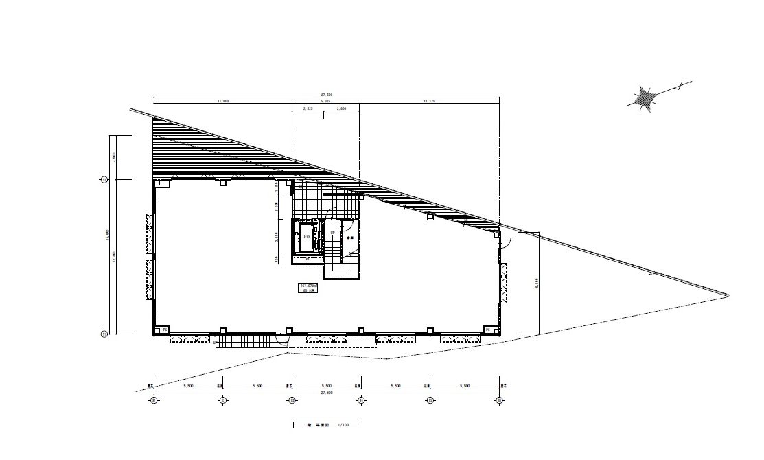
賃貸条件
- 面積
-
1階:91.55坪
2階:96.49坪
3階:96.49坪
- 備考
- 【賃料目安】1階:坪16,000円 2階:坪12,500円 3階:坪12,500円
この物件のお問い合わせはこちら