NEW
物件No.7153
己斐北口計画物件
【 広島県 広島市西区 】JR西広島駅(己斐)北口の再開発地域。駅から徒歩1分の好立地

- 住所
- 〒7330813 広島県 広島市西区 己斐中1丁目(己斐駅北口)
- 最寄駅
-
JR西日本・広島電鉄西広島駅より徒歩1分
- 募集科目
-
1F:心療内科 婦人科 小児科
3F:耳鼻科 皮膚科 眼科 泌尿器科
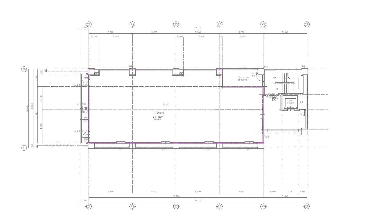
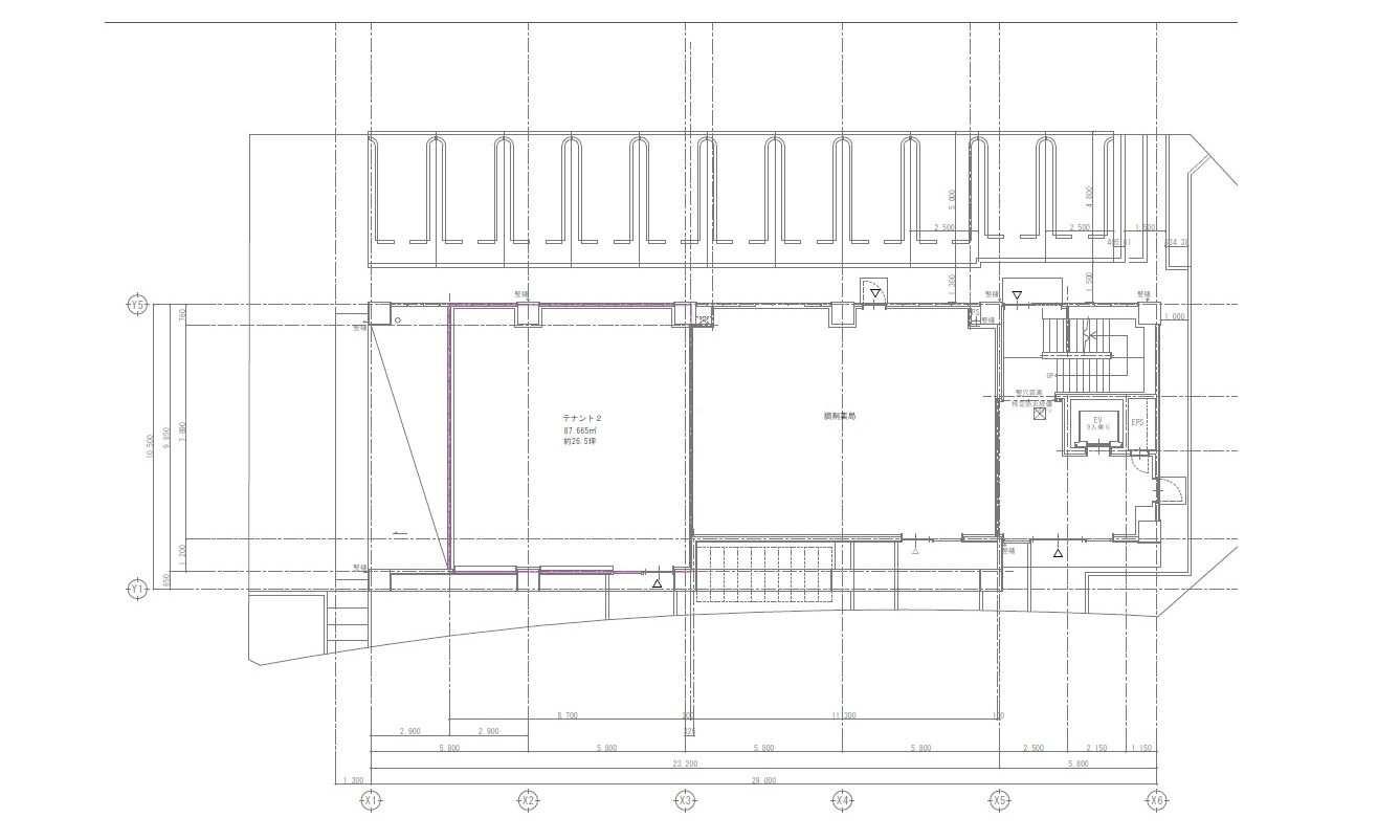
賃貸条件
- 面積
-
1Fテナント:約39坪
3Fテナント:約65.3坪
この物件のお問い合わせはこちら