NEW
物件No.7139
MEDICALBASE AMAGASAKI
【 兵庫県 尼崎市 】JR尼崎駅徒歩6分の好立地。3.2万人の暮らしを支える主治医に。

- 住所
- 兵庫県尼崎市長州本通1丁目-73
- 最寄駅
-
JR神戸線尼崎駅徒歩7分
- 募集科目
- 全科目
- ポイント
-
・1km圏内周辺人口32,500人
・隣にスーパーあり(サンディ尼崎長洲店)
・177戸ファミリーマンション2026年3月引渡し開始予定
・「開業応援特典」あり ※詳細はお問い合せください。
賃貸条件
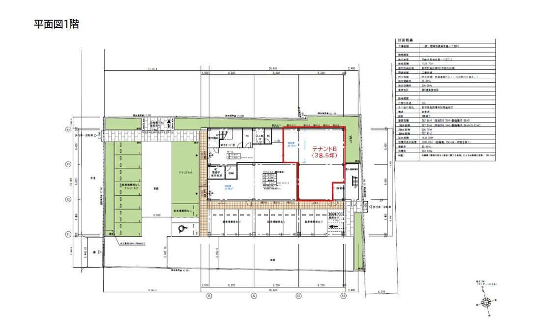
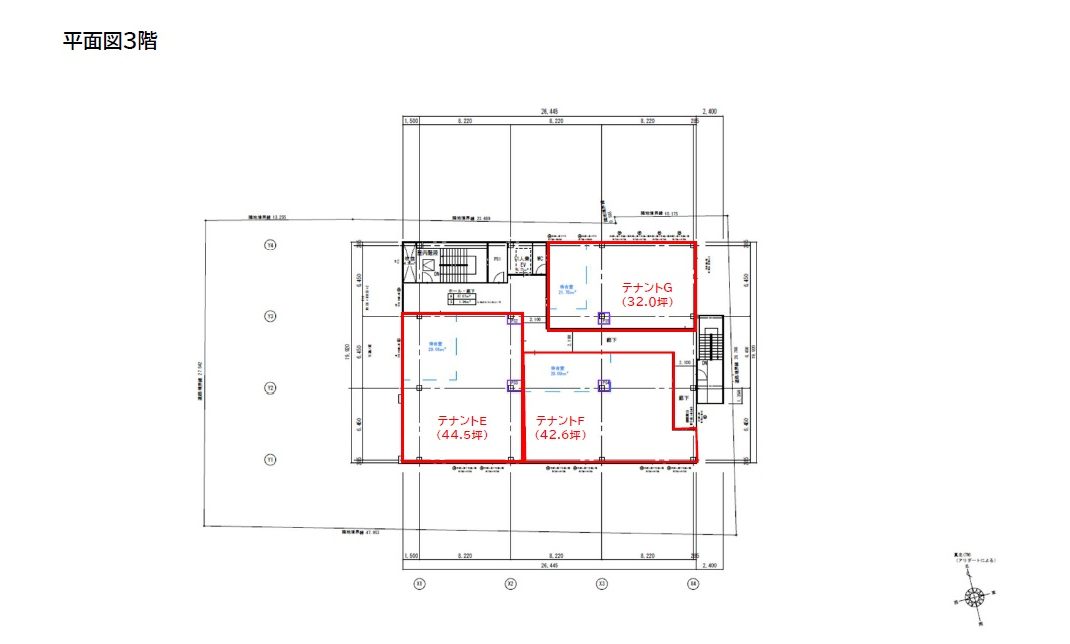
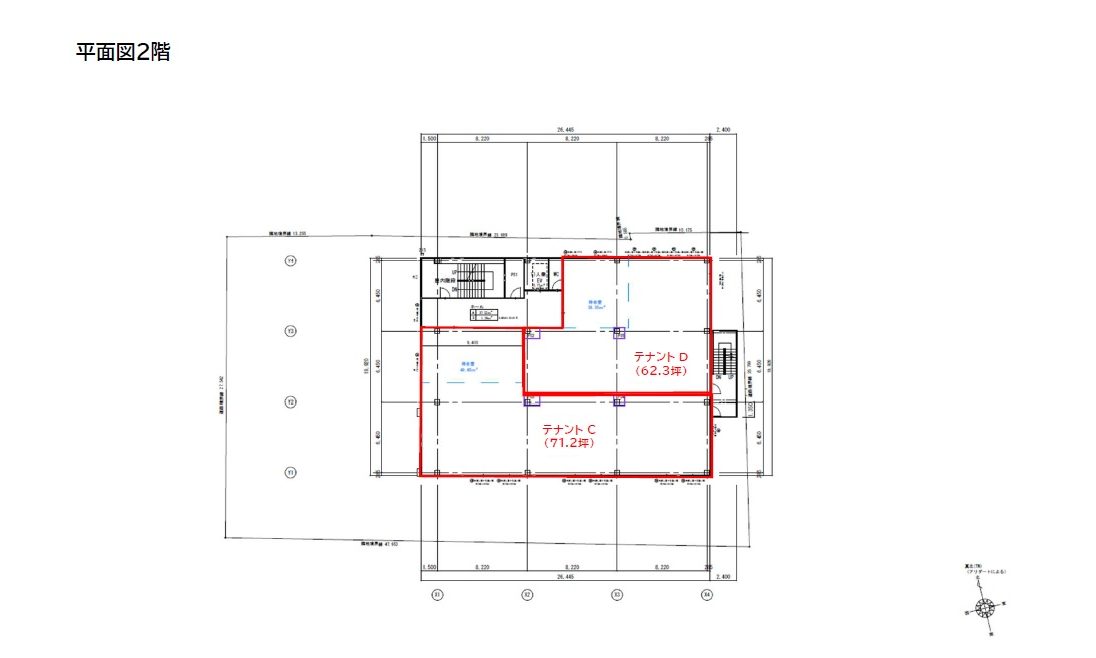
- 面積
-
テナントB/1F:38.5坪
テナントC/2F:71.2坪
テナントD/2F:62.3坪
テナントE/3F:44.5坪
テナントF/3F:42.6坪
テナントG/3F:32坪
- 賃料
-
1F:14,300円/坪
2F:13,200円/坪
3F:12,100円/坪 ※税込
- 共益費
- 3,300円/坪(税込)
- 備考
- テナントEとFは併せてご使用いただくことも可能です。(87.1坪になります。)計画段階により、内容が変更となる可能性がございます。
この物件のお問い合わせはこちら