NEW
物件No.7138
MEDICALBASE NISHIAKASHI
【 兵庫県 明石市 】開発が進む西明石で、地域に愛されるクリニックを。

- 住所
- 兵庫県明石市花園町1-13付近(東隣)
- 最寄駅
-
JR神戸線西明石駅駅徒歩12分
- 募集科目
- 小児科以外の科目
- ポイント
-
・国道2号線沿い
・JR西明石駅ビル整備中(26年開業予定)
・大規模ファミリーマンション開発中(27年6~8月引渡し)
・「開業応援特典」あり ※詳細はお問い合せください。
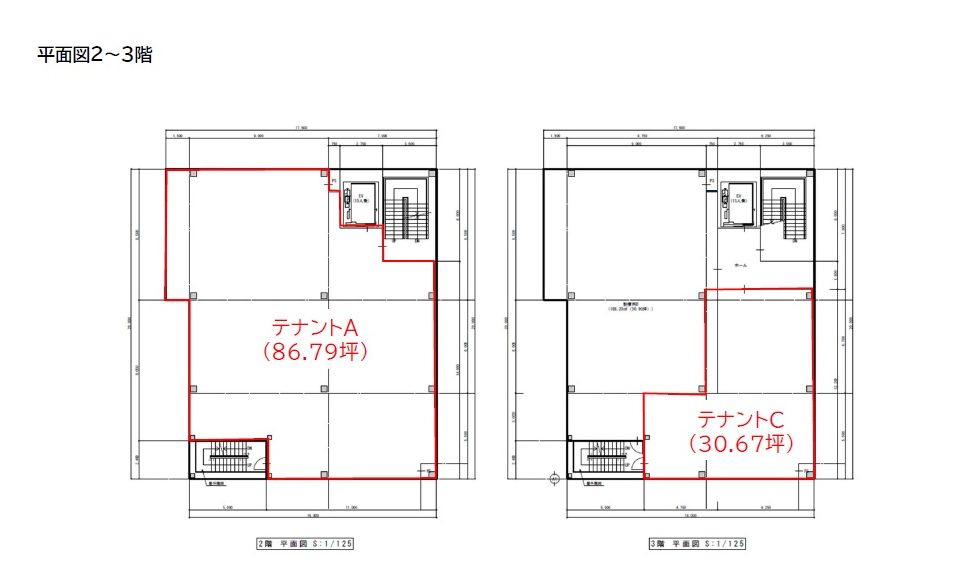
賃貸条件
- 面積
-
テナントA/2F:86.79坪(分割利用相談可)
テナントC/3F:30.67坪
- 賃料
- 13,200円/坪(税込)
- 共益費
- 3,300円/坪(税込)
- 備考
- 賃料については相談可能です。
この物件のお問い合わせはこちら