NEW
物件No.7137
(仮称)神戸市西区伊川谷クリニックビルPJ
【 兵庫県 神戸市西区 】1.6万人が暮らす街の主役に。あなたの専門性を活かせる好立地。

- 住所
- 兵庫県神戸市西区伊川谷町有瀬462-5付近
- 最寄駅
-
JR明石駅から車で17分
- 募集科目
- 全科目
- ポイント
-
・スーパーマーケット隣接(生活導線の中心)
・神戸市西区内で人口集中エリア(伊川谷町:16000人超え)
・神戸学院大学隣接(新校舎建設中)
・内科診療圏調査データ良好
賃貸条件
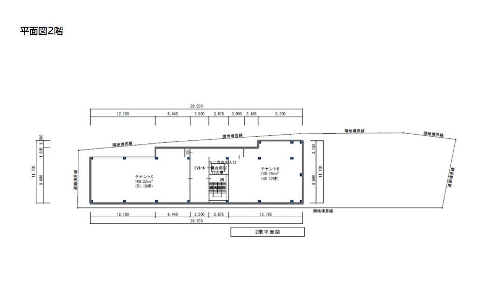
- 面積
-
テナントA/1F:60.29坪
テナントB/2F:45.12坪
テナントC/2F:51.19坪
- 賃料
- 未定
- 備考
- 経済条件未定です。2027年秋月竣工予定
この物件のお問い合わせはこちら