NEW
物件No.7122
久宝寺駅北側 医療モール計画
【 大阪府 八尾市 】2028年春ごろ竣工予定。駅徒歩圏内、道路拡幅で視認性良好

- 住所
- 大阪府八尾市南久宝寺1丁目
- 最寄駅
-
JR大和路線線久宝寺駅徒歩5分
- 募集科目
- 内科含む全科目
- ポイント
-
JR久宝寺駅北側での医療モール計画です。
マンション、住居が立ち並ぶエリアで、定住人口が確保されるエリアです。
前面道路が拡幅工事中で、今後更なる視認性も向上が見込まれます。
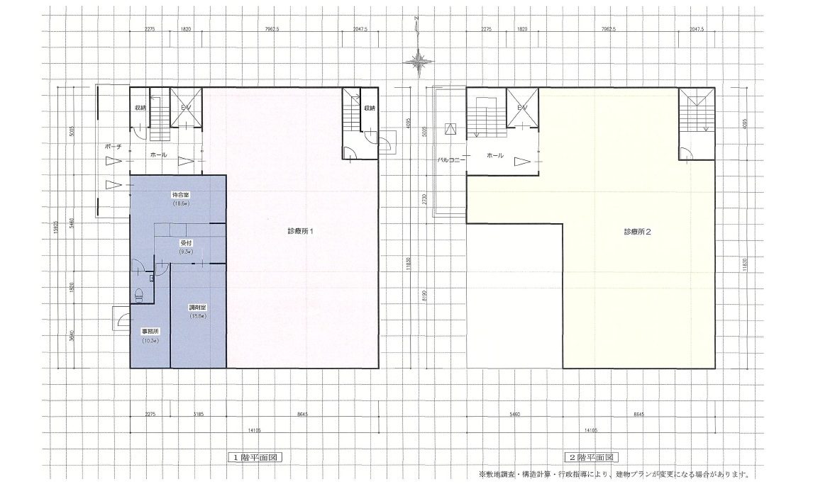
各室面積はご要望により変更可能
※掲載している図面はプラン段階のもので、今後変更の可能性がございます。
賃貸条件
- 面積
- 1階:約41坪 2階:約46坪
- 賃料
- 1階:13,200円/坪 2階:12,100円/坪 ※税込
- 共益費
- 1,100円/坪(税込)
- 募集区画
- 1階 2階
- 備考
- 駐車場 月額11,000円区画面積は相談可能です。
この物件のお問い合わせはこちら