物件No.5022
柳瀬川駅前医療モール計画
【 埼玉県 志木市 】三井住友銀行跡地の複合施設に医療モール計画!

- 住所
- 埼玉県志木市館2丁目5−2
- 最寄駅
-
東武東上線「柳瀬川駅」徒歩1分
- 募集科目
- 全科目
- ポイント
-
三井住友銀行跡地の複合施設に医療モール計画!
1F・2F:2026年10月開業!
柳瀬川駅前、視認性抜群!
周囲に競合クリニック少なく、早期集患が期待!
賃貸条件
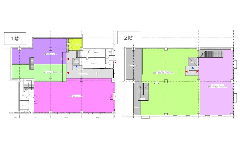
- 面積
- 1階:約25坪 2階:約70坪 3階:約40坪
- 賃料
- 応相談
- 保証金
- 応相談
- 募集区画
- 1階1区画 2階2区画
この物件のお問い合わせはこちら