物件No.4151
泰玄ビル
【 愛知県 名古屋市東区 】⽪膚科・内科医院が盛業中!地下鉄近くのビルテナント

- 住所
- 〒4610004 愛知県名古屋市東区葵1-25-12
- 最寄駅
-
東山線新栄町 徒歩1分 2番出口
- 募集科目
- 小児科 (産)婦人科 耳鼻科 泌尿科 眼科
- ポイント
-
◆新栄町駅(1日乗車人員1万4千人)からすぐ
◆都心にありながら解放感ある街の駅チカ物件
◆2階で皮膚科・内科医院が盛業中
◆1階に調剤薬局が入居済
◆耳鼻咽喉科・泌尿器科以外の科目もご相談可能!
(皮膚科・内科・心療内科除く)※掲載内容は2024年9月4日時点の情報となります。
賃貸条件
- 賃料
- 7,906円/坪(税別7,187円/坪)
- 共益費
- 2,745円/坪(税別2,495円/坪)
- 保証金
- 応相談
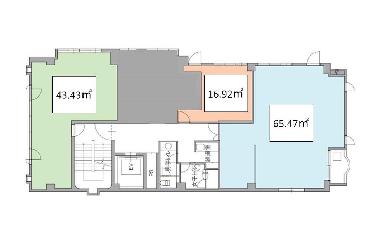
- 面積
- 43.43㎡(13.13坪)、16.92㎡(5.11坪)、65.47㎡(19.80坪)
- 募集区画
- 5階 3区画
- 備考
- 現況3区画分割済 最大約38.1坪 仕切り撤去相談可
この物件のお問い合わせはこちら